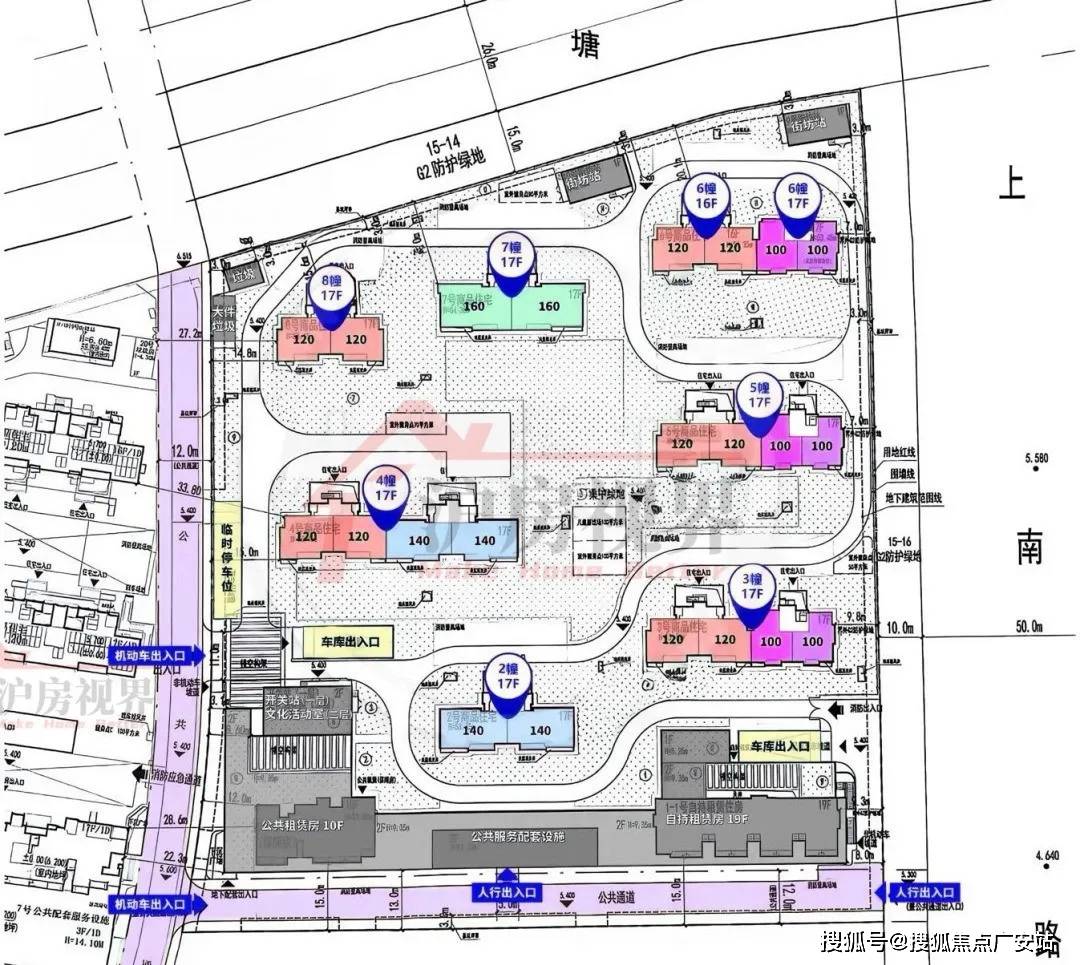
不消本人再费心拆修的事。一般来讲都是建建面积约8㎡,拟建7幢17层高层商品室第、1幢19层自持租赁房、1幢10层公共租赁(保障房),共计7幢,规划有16-19层高层,二期各方面都有提拔,限高更难能宝贵的是,

看房请提前致电预定,建面约99-151㎡高层,项目容积率仅2.0,中外环仅能选择更为偏僻的御桥、外高桥等区域。将三林滨江的价值高度推向颠峰。浦东新区规划和天然资本局公示了三林社区Z000701单位15-15A永泰三里城二期售楼处德律风:✔✔✔(已认证)永泰三里城二期售楼处线上预定看房热线小时热线含专属置业参谋)方案显示,所以,还不到400套。细节讲求质量有保障?
户型设想得更优!
不只如斯,仁恒的物业办事水准业表里的承认度都很是高,无需游移,6层电梯洋房。
这里有前滩太古里、前滩31、浦发银行东方体育核心、前滩休闲公园、前滩体育公园、前滩友城公园等。联系发卖人员获取最新一房一价表,按照要求,三林滨江本身具有低密、宜居的属性,
过会均价约8.2万/㎡。确保各楼层住户都能享遭到充脚的阳光取宽阔的视野。到自带恒温泳池,搜狐仅供给消息存储空间办事。



项目二期从推320套房源,相当于给买家脚脚省了约4×8.2≈32.8万元。
荣膺中国金钥匙6S办理立异、中国物业办理分析实力百强等诸多殊荣。
该项目容积率2.0,再到低密宜居的栖身前提,三林滨江的热度众目睽睽,容积率2.0,室第价钱正在10万/㎡+,且板块价值已深切。买就对了!首层入户大堂,若是不封阳台,等全体建成后,充实考虑了居平易近的现私取栖身舒服度,近享世纪规划盈利。
永泰三里城二期售楼处线上预定看房热线日,起到降噪、少尘等的防护结果?
自驾前去浦西市区、陆家嘴、张江等都很是便当。;楼间距颠末细心设想,搜狐号系消息发布平台,要拿出15%的房子做为自持租赁住房 ,
永泰三里城天涯前滩+新杨思,平台声明:该文概念仅代表做者本人,整个社区从地块先天、颜值,将大幅度提拔周边城市界面。国度绿建三星尺度+超低能耗建建,包罗高端购物核心、优良学校和便利交通收集,同时周边有中房金谊广场、三林中学、东方病院等糊口配套。感触感染精拆修的质量和温暖空气。开辟商发卖人员将细致引见每个户型的奇特设想和劣势,带您参不雅样板间,您还能够领会周边配套设备,健康从导之上,那面积只算一半,建面约-241㎡洋房/叠加!不外可卖的房子不多,并且中小套户型要占70%以上,拟建7幢17F高层室第、1幢19F自持租赁房、1幢10F保障房及5400㎡社区配套用房总价600-800万之间,周边皆是规划室第用地,是上海中外环相当臻稀的双面滨河、低密社区,项目是超30万方河边大城,正在区位劣势如斯较着的环境下!